
Opis koncepcji projektu zamiennego przebudowy ogniska Starówka CWR Rodzinna Warszawa przy ul. Starej 4 w Warszawie



Budynek Ogniska został wzniesiony z cegły cementowej wg projektu warszawskiej grupy projektowej Tygrysy. Budynek łączył elementy modernistyczne i tradycyjną formę zabudowy. Elewacje wykonano z szarej cegły, materiału charakterystycznego dla warszawskiego modernizmu, szerokie okna podkreślały poziome kierunki na fasadzie, natomiast forma centralnego budynku z oficynami i spadziste dachy nawiązywały do tradycyjnej zabudowy. Decyzje te świadomie wynikały z kompozycji całego założenia. Budynek położony na skarpie uzyskał formę zwartą, dopasowaną do pierzei ulicy Starej, podkreślał wysokość górnego tarasu skarpy wiślanej. Hotelik, położony u podnóża skarpy nawiązywał do luźniejszej i bardziej krajobrazowej zabudowy dolnego tarasu.
Z czasem, w wyniku termomodernizacji, szara cegła została ukryta pod warstwą styropianu i tynku a modernistyczne, poziome okna, które okazały się niefunkcjonalne i nieszczelne zostały przy okazji wymiany zwężone

Celem niniejszego projektu zamiennego jest:
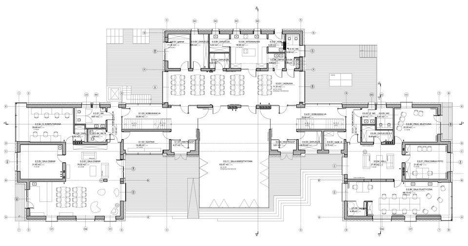
- dostosowanie budynku do zmieniających się potrzeb Ogniska (przeniesienie administracji Ogniska do budynku na skarpie i urządzenie pracowni plastycznych, zmiana organizacji wyżywienia podopiecznych na posiłki dowożone – catering, wygospodarowanie dużej sali wielofunkcyjnej o odpowiedniej wysokości)
- uwzględnienie w budynku potrzeb osób niepełnosprawnych (zewnętrzny szyb windowy, pochylnie)
- remont wnętrz, modernizacja techniczna oraz dostosowanie do aktualnych przepisów budowlanych
- ocieplenie budynku i remont elewacji (dawne ocieplenie gr. 5 cm jest niewystarczające)
Realizacja powyższych zamierzeń w sposób istotny wpływa na formę budynku. Wprowadzane zmiany w sposobie działania placówki wpływają na silne funkcjonalne wyodrębnienie poszczególnych brył obiektu (trzon centralny z funkcjami ogólnymi oraz dwa skrzydła mieszczące części dla różnych grup wiekowych. Efekt zostanie podkreślony poprzez przeszklenie łączników i klatek schodowych, co spowoduje optyczne odseparowanie skrzydeł budynku od części centralnej. Intencją jest uzyskanie efektu trzech odrębnych domów ustawionych w krajobrazie. Zakłada się również silniejsza integrację budynku z otaczającym terenem poprzez budowę drewnianych tarasów-platform dostępnych z jadalni. Planowane jest tam umieszczenie m.in. szklarni na warzywa, itp.




Elewacje zostaną obłożone betonowymi płytkami, nawiązującymi do pierwotnego projektu Ogniska. Szarość betonu zostanie przełamana drewnianymi wypełnieniami loggii oraz ażurowymi drewnianymi obudowami balkonów. Doświetlenie budynku zostanie uzyskane poprzez wykucie dodatkowych okien oraz świetlików dachowych. Przyjęto zasadę, że istniejące okna zostaną ujednolicone z zachowaniem istniejących podziałów i proporcji a nowe okna zostaną wykonane bez podziałów w formie kwadratów lekko wystających z płaszczyzny elewacji. Nowododane kubatury (sala wielofunkcyjna i szyb windowy) oraz istniejące balkony zostaną obłożone ażurowymi szczeblami drewnianymi.
We wnętrzu zostaną wymienione schody, nawierzchnie (parkiet i wykładziny), drzwi. Planuje się stosować jasną tonację wnętrz (białe ściany, jasne forniry i wykończenia) z akcentami kolorystycznymi odpowiadającymi poszczególnym skrzydłom budynku.
W budynku zostaną wykonane instalacje ogrzewania, wentylacji, wod-kan w oparciu o istniejące projekty, zmodyfikowane (dopasowane) do zmienionego układu funkcjonalnego.

W stosunku do istniejącego projektu przewidziano następujące zmiany:
- zmiany w układzie pomieszczeń
- zaprojektowano rozbudowę sal na froncie budynku, tworząc wielofunkcyjne pomieszczenie o powierzchni 100 m2
- zastąpienie platformy zewnętrznej dla osób niepełnosprawnych windą z zewnętrznym, oszklonym szybem umieszoną na ścianie tylnej budynku
- ściany zewnętrzne ocieplone styropianem gr 20 cm i obłożone płytkami cementowymi w formacie cegły, nawiązujące do pierwotnego charakteru budynku.
- zaprojektowano dodatkowe doświetlenie pomieszczeń w formie kwadratowych otworów okiennych oraz świetlików dachowych z drewna klejonego oraz zaplanowano wymianę stolarki okiennej istniejącej na nową, wykonaną z drewna klejonego w naturalnym kolorze drewna (buk)
- zaprojektowano nową izolację dachową w postaci dachu wentylowanego, krytego blachą aluminiową z izolacją z wełny mineralnej gr. 35 cm
- zaprojektowano tarasy-platformy drewniane na tyłach budynku z dodatkowymi szklarniami do warsztatów dla dzieci
- platforma frontowa (ganek) zostanie pokryta drewnem i wyposażona w platformę dla osób niepełnosprawnych

