
Projekt konkursowy
Idea
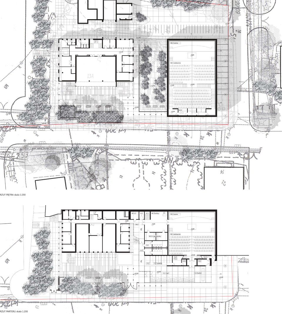
Ideą projektu jest kompozycyjne połączenie wszystkich trzech obiektów poprzez rozbudowę i podkreślenie istniejących tarasów, w których wyodrębniona została przestrzeń dla nowych funkcji i nadwieszenie bryły sali koncertowej nad środkowym tarasem.
Spójność koncepcji – ścisłe powiązanie nowego budynku z zagospodarowaniem całego terenu – podkreśla konsekwentne zastosowanie jednego modułu, któremu podporządkowana jest konstrukcja obiektu i aranżacja przestrzeni. Najważniejsza przestrzeń budynku – wejście, foyer, główny poziom sali – umieszczony zostały na poziomie chodnika ulicy Kościuszki. Przestrzeń publiczna na zewnątrz i wewnątrz podzielona jest jedynie szklaną taflą ściany hallu. Strefa artystów – foyer artystów, kulisy, garderoby i scena – znajdują się na tym samym poziomie co najniższa kondygnacja szkoły i połączone są łącznikiem ukrytym w skarpie.
Nowy budynek stanowi wyraźną, nową bryłę, której zwarty i prosty kształt nie konkuruje z obecnym zagospodarowaniem, ale go uzupełnia i porządkuje. Dominuje w przestrzeni gabarytem, ale przez możliwie niskie umieszczenie Sali koncertowej nie przewyższa istniejących budynków.



Gradacja przestrzeni
Poszczególne poziomy terenu odpowiadają podziałom przestrzeni:
Plac wejściowy znajduje się na poziomie ulicy i łączy z hallem głównym. Poszerzony chodnik, foyer i plac uzupełniają ciąg ulicy Kościuszki integrując zewnętrzną przestrzeń publiczną z wnętrzem budynku i jego bezpośrednim otoczeniem. Ogród przed elewacją frontowa szkoły przekształcony został w półpubliczny plac, oddzielony od ulicy pasem zieleni.
Górny taras z wewnętrznym dziedzińcem szkolnym przedłużony został nad foyer i zaplecza sali. Tarasowy ogród częściowo zastępuje odebrany szkole dotychczasowy teren zielony i nawiązuje do nieistniejącego już geometrycznego ogrodu Willi Mecenasa Witczaka. Poszczególne poziomy i tarasy wychodzą poza sztywny obrys łagodnie przenikając się ze sobą – budynek szkoły zawiesza się nad zielonym placem, sala unosi nad strefą wejściową a dziedziniec szkolny zawisa nad przestrzenią publiczną stanowiąc dodatkową atrakcję i punkt widokowy umożliwiający wgląd w kierunku zielonych terenów na tyłach Szpitala Dziecięcego.


[nggallery id=32]
