Praca konkursowa.
Zespół: Marlena Happach, Marek Happach, Dorota Kudła-Kubrakiewicz, Wojciech Tylbor-Kybrakiewicz (grafika)

EXPO 2015
W nawiązaniu do głównego tematu EXPO 2015 polski pawilon odwołuje się do podstawy polskiego rolnictwa i głównego składnika diety mieszkańców naszego kraju i świata, jakim jest zboże. Łany zbóż są motywem przewodnim zarówno dla formy zewnętrznej pawilonu jak i dla układu i scenariusza ekspozycji. Wydłużona działka wyznaczona na teren polskiej wystawy odpowiada proporcjom charakterystycznym dla polskiego pejzażu podziałów łanowych. Pasiaty krajobraz to archetypiczny obraz polskiego pejzażu zakorzeniony w pamięci zarówno mieszkańców Polski jak i turystów. Wykorzystanie linearnej kompozycji odpowiada równocześnie zamysłowi twórców koncepcji zagospodarowania całego terenu wystawowego EXPO. Malowniczy efekt krajobrazowy staje się pretekstem do przekazu głębszej refleksji – jakie znaczenie dla wyżywienia kraju, kontynentu i planety mają uprawy i produkty zbożowe i jakie miejsce zajmuje w tym procesie Polska, przy podkreśleniu, że wartością polskiego rolnictwa i powiązanych z nim dziedzin – szczególnie gastronomii i turystyki – jest symbioza tradycji i nowoczesności.

Forma zewnętrzna pawilonu i treść ekspozycji stanowią merytoryczną i przestrzenną całość. Rosnące na dachu pawilonu zboże to nie tylko zabieg dekoracyjny, ale integralny element wystawy. Wąskie pasy tradycyjnych polskich zbóż – żyta, prosa, owsa, gryki i jęczmienia – podzielone są na mniejsze moduły. Każdy z modułów pozwala na wyhodowanie ilości zboża niezbędnej do wypieczenia jednego bochenka chleba. Dzienna produkcja wystarczy do wypieku 5 bochenków. Uprawa pola tworzącego polski pawilon umożliwia wyżywienie przez 6 miesięcy (czas trwania wystawy) jednej rodziny, złożonej z pary dorosłych i dwójki dzieci. Poszczególne moduły obsadzane są w jednodniowych odstępach czasu. W ten sposób zobrazowany jest pełen cykl uprawy zboża – od siewu, przez wzrost, po zbiory. Sześciomiesięczna ekspozycja, przy korzystnych warunkach atmosferycznych, umożliwi (w zależności od gatunku) przejście przez 2 do 3 pełnych cykli wegetacji (ok. 100 dni na 1 cykl). Ten sposób prowadzenia uprawy, dość nieefektywny dla samych plonów, niesie dodatkową wartość edukacyjną i pozwala utrzymać efekt estetyczny przez cały okres trwania wystawy.

Ekspresyjna forma helisy umożliwia wizualne i funkcjonalne połączenia wnętrza pawilonu z zewnętrzem.
Kompozycja wnętrza pawilonu odpowiada łanowym podziałom zadaszenia. Do środka zwiedzający wchodzą wsuwając się pod uniesione na słupach pole. Ekspozycja podzielona jest na pięć pasm odpowiadających poszczególnym liniom tematycznym wystawy. Scenariusz ekspozycji nie jest linearny. Zwiedzający sam decyduje w jakiej kolejności, w jakim tempie i jak szczegółowo studiuje części.
Pasmowa kompozycja uporządkowana została przez podziały poprzeczne. Stefy: informacja, interakcja,
wiedza i eksperyment łączą poszczególne działy tematyczne. Podział ten podkreśla forma pawilonu – od przewężenia na wejściu (informacja), przez najbardziej reprezentacyjną, wysoką, halowa przestrzeń (interakcja) oraz
wydzielone wąskie tematyczne tunele (wiedza) po otwartą przestrzeń wielofunkcyjną, przygotowaną do czasowego wyłączenia z ogólnej trasy zwiedzania, w której planowane są wariantowo: wystawy czasowe, strefa konferencyjna, projekcje filmowe oraz różnorodne warsztaty i aktywności (eksperyment).
Cała wystawa zaprojektowana jest na kształt wielkiego laboratorium, w którym zwiedzający mogą nie tylko zobaczyć ekspozycję w formie zdjęć, plansz czy projekcji, lecz też aktywnie w niej uczestniczyć. Poszczególne elementy odwołują się do wszystkich zmysłów człowieka – nie tylko wzroku i słuchu, ale również dotyku, węchu i
smaku. Targi wystawowe są imprezą rodzinną i wystawa zawiera elementy atrakcyjne dla wszystkich pokoleń, ze szczególnym uwzględnieniem dzieci.
Tylna część pawilonu przeznaczona została na funkcje techniczne – magazyny, szatnie obsługi, cargo.
Strefa biurowa – gabinety, biura, studia TV i sala konferencyjna – zblokowane zostały w jeden zespół ulokowany na piętrze pawilonu (nad częścią techniczną i strefą eksperymentu).

PRODUKCJA – dział poświęcony technologiom powiązanym z produkcją rolną niezwiązaną z wyżywieniem. W tej części ekspozycji prezentowane będą informacje dotyczące ochrony środowiska, biotechnologii, recyklingu, możliwości wykorzystania produktów ubocznych uprawy zboża (wyroby ze słomy, kompostowanie, biopaliwa).
- informacja – kioski informacyjne i stanowiska multimedialne prezentujące tematykę ochrony środowiska, biotechnologii, recyklingu.
- interakcja – mobilne stanowiska laboratoryjne (minilaby): przetwarzanie biomasy, naturalne kosmetyki, destylacja alkoholu, biopaliwa
- wiedza – w jaki sposób można wykorzystać zboża i produkty uboczne upraw: domy ze słomy, słoma nowoczesny design – prezentacja w formie posterów podwieszanych do sufitu w układzie poprzecznym
- eksperyment – pokazy i warsztaty DIY – co można zrobić ze słomy – biżuteria, wyroby ludowe np. pająki, kosze, współczesny design np. meble ze słomy, moda (len, hafty)
ROLNICTWO – dział poświęcony technologiom rolnym w Polsce i na świecie.
- interakcja – interaktywne piaskownice – SANDBOX – powierzchnia prawdziwego piasku w czasie rzeczywistym odwzorowywana jest przez cyfrową symulację mapy topograficznej z możliwością wykorzystania wirtualnej wody. Eksponat adresowany jest do wszystkich grup wiekowych. Umożliwia praktyczne naukę czytania map topograficznych oraz poznanie zasad kształtowania terenu dla uzyskania najlepszego nawodnienia (przez stosowanie wałów przeciwpowodziowych, kanałów melioracyjnych, działów wodnych, zlewni itp.) oraz plonu upraw rolnych (nasłonecznienie stoku, tarasowe kształtowanie terenu). Umieszona na poziomie stołu kuweta z piaskiem połączona jest z zawieszonym powyżej urządzeniem Motion-Capture , które wykrywa zmieniającą się powierzchnię oraz projektorem rzucającym na piasek zmieniający się obraz mapy. Wirtualna woda wypełnia w czasie rzeczywistym zagłębienia tworzone w powierzchni piasku.
- wiedza – przejście między słupami a wyjściem na obniżony dach pawilonu – za przeszklona ścianą widoczne rosnące łany zbóż; tematyka: nowe trendy w polskim rolnictwie – rolnictwo ekologiczne, agroturystyka, urban farming, permakultura; ekspozycja w formie prezentacji na bezszwowych ekranach LCD zawieszonych pomiędzy szklanymi slupami w konstrukcji drewnianej wypełnionymi ziarnami zbóż odpowiadającymi gatunkom zasiewów
- eksperyment – warsztaty ogrodnicze: dla dzieci mini-ogródki w doniczkach, rzeżucha, DIY: trawa pszeniczna, polskie zioła (czarnuszka, arcydzięgiel, rumianek, ogórecznik, natka pietruszki, lubczyk)
ZDROWIE I DIETA – dział ekspozycji prezentujący w jaki sposób zboże wykorzystywane jest w diecie człowieka i
jaki ma wpływ na zdrowie. Prezentowane są informacje na temat zawartości produktów zbożowych w diecie
człowieka (piramida zdrowia), jaka powierzchnia upraw potrzebna jest do wypieku jednego bochenka chleba, jak duże pole może wyżywić rodzinę.
informacja – lada recepcyjna i stanowisko informacyjne Polskiej Organizacji Turystycznej
- interakcja – kioski informacyjne prezentujące polskie produkty, polską agroturystykę, zdrową żywność, polskie uzdrowiska
- wiedza – zboże w diecie, piramida zdrowia, ile zboża potrzebujemy na jeden bochenek; ile jemy rocznie produktów zbożowych; ekspozycja w formie posterów i ekranów LCD zawieszanych na ścianach działowych i między słupami wzdłuż pawilonu
- eksperyment – warsztaty badawcze: jaką wartość kaloryczną i jakie składniki odżywcze ma kromka tradycyjnego chleba w porównaniu z żywnością typu fastfood; komponowanie jadłospisów
WOKÓŁ STOŁU – strefa smaku. Miejsce gdzie można spróbować przygotowanych na miejscu potraw i przekonać się o wartości jakości życia. Modularne stoły o zróżnicowanej wysokości mogą być w różny sposób zestawiane.
Sposób aranżacji odwołuje się do polskiej gościnności i bliskiej także Włochom tradycji wspólnych posiłków spożywanych w gronie przyjaciół i rodziny.
- interakcja – współdziałanie w tej strefie to przede wszystkim wspólne jedzenie, któremu towarzyszyć mogą elementy dodatkowe np. muzyka
- wiedza – ekspozycja tematyczna na temat ewolucji polskiego stylu spożywania posiłków na co dzień na przykładzie typowych jadłospisów sprzed lat do dzisiaj (pory posiłków i jadłospis) i od święta, co ilustrować mogą przemiany tradycyjnego polskiego wesela (od jednego wspólnego stołu w warunkach domowych po osobne stoliki w restauracjach) ; ekspozycja w formie posterów i ekranów LCD zawieszanych na ścianach działowych i między słupami wzdłuż pawilonu
- eksperyment – strefa degustacji powiązana z zajęciami kulinarnymi z kolejnej strefy
KUCHNIA – w odpowiedzi na główny temat wystawy EXPO 2015 przygotowanie żywności potraktowane ostało nie jako czynność techniczna ukrywana na zapleczu restauracji, ale integralny element ekspozycji. Dania przygotowywane są na oczach zwiedzających i serwowane w przestrzeni pawilonu. Zamiast oglądać potrawy na zdjęciach czy filmach można na żywo obserwować jak się je przygotowuje, zamawiać indywidualne kompozycje, poczuć prawdziwy zapach i smak polskiej kuchni. Pokazując cały proces powstawania żywności chcemy pokazać polską kuchnię jako nowoczesną i pełną potencjału, oparta na świeżych produktach i dostępną dla każdego.
Tradycyjne potrawy z produktów zbożowych serwowane będą w nowoczesnej odsłonie – lekkiej i zdrowej, przy wykorzystaniu technik kuchni fusion i molekularnej.
Jedną z atrakcji może być poszukiwanie podobieństw polskiej i włoskiej tradycji kulinarnej (włoska pasta – polskie kluski, polskie pierogi, kołduny i uszka – włoskie ravioli, włoska pizza – polskie podpłomyki i kulebiaki) i zaskakujących dla Europejczyków zestawów smakowych (makarony na słodko, polskie kasze).
- interakcja – wzorem nowoczesnych restauracji kuchnia jest otwarta i zwiedzający mogą obserwować kucharzy przy pracy, nawiązywać z nimi rozmowę, poznawać przepisy i zamawiać własne kompozycje
- wiedza – ekspozycja o potrawach regionalnych, szlakach kulinarnych i polskiej kuchni współczesnej
- eksperyment – DIY – warsztaty pieczenia chleba, lepienia pierogów czy wyciskania soku a następnie wspólne spożywanie posiłku (strefa Wokół Stołu)

ŚCIEŻKA ZWIEDZANIA
Podstawowy szlak zwiedzania prowadzi od wejścia pawilonu, przez strefę interakcji, wiedzy i eksperymentu do bocznego wyjścia na dach. Wyjście odbywa się poprzez strefę relaksu (ławki i stanowiska widokowe na dachu) i ścieżki na polu uprawianym na dachu pawilonu do zejścia z dachu w kierunku głównej alei wystawowej. W skróconej wersji można pominąć część ogrodową i obejrzeć tylko ekspozycję wewnątrz pawilonu. Możliwe jest również odwrócenie trasy zwiedzania. Z głównej alei wystawowej można wejść bezpośrednio na obniżoną część dachu i po zwiedzeniu części ogrodowej można wejść przez boczne wejście do pawilonu i zwiedzać dalej wystawę prezentowaną wewnątrz.
POLE NA DACHU
Ogród podzielony jest na pięć pasm głównych obsadzonych jęczmieniem, żytem, gryką, owsem i prosem.
Łany nie są obsiewane równomiernie. Podzielone są na mniejsze moduły o powierzchni 2m2 (odpowiadające ilości zboża potrzebnej do wypieczenia jednego bochenka chleba). Moduły obsadzane są w odstępach jednodniowych, przy założeniu, że cykl wegetacji zostanie rozpoczęty przed otwarciem wystawy (od 1 marca). W ten sposób zwiedzający będą mogli zobaczyć zboża w każdej fazie wzrostu a przez cały czas trwania wystawy pawilon zachowa walory estetyczne (nie będzie okresu, kiedy cały dach zamieni się w rżysko lub świeżo zaorane pole). Łanom zbóż towarzyszą wąskie ścieżki i schodki, którymi można poruszać się po dachu pawilonu. Ścieżki łączą się i miejscami poszerzają tworząc przestrzeń relaksu. W tych miejscach zaplanowane są punkty widokowe i ławki. W tylnej części dachu zaprojektowany jest pomost łączący wszystkie ścieżki, umożliwiający obsługę techniczną. Znajduje się tam wpust do zrzutu prowadzącego do części technicznej pawilonu na parterze, przez który transportowane mogą być plony i odpady. W części magazynowej znajdą się kontenery do gromadzenia biomasy oraz kompostownik. Uprawa zboża zaplanowana jest na 30cm warstwie substratu. W celu uniknięcia obsuwania się gleby wraz z uprawą poszczególne moduły podzielone zostaną pionowymi przegrodami, co umożliwi złagodzenie spadku i tarasowanie upraw. Ze względu na cienka warstwę urodzajnej ziemi i narażenie na wiatr słońce planowany jest montaż stałego systemu nawadniania przez rurki sączące wodę wprost do gleby. Planowany jest też odzysk wody deszczowej, która użyta zostanie do nawadniania pola. Z uwagi na spodziewane natężenie ruchu zwiedzających proponowane jest kontrolowanie dostępu na część dachową pawilonu (bramki obrotowe) i stałą opiekę ogrodnika.

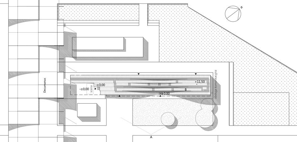
ZAGOSPODAROWANIE TERENU
Zagospodarowanie terenu jest ściśle powiązane z formą pawilonu oraz koncepcją zagospodarowania całego terenu wystawowego. Pawilon ustawiony jest ścianą szczytową w kierunku głównej alei, przy odpowiednim odsunięciu określonym przez organizatorów. Falisty dach kontynuowany jest przez usypane wzniesienie prowadzące z dachu w kierunku głównej alei terenu wystawowego. Powstałe przedpole pawilonu okresowo może być wykorzystywane dla ustawienia sceny (5x8m) i pola dla 250-osobowej widowni. W tej części planowane jest też ustawienie stołów i ław, przy których można spożyć posiłek serwowany wewnątrz pawilonu.
Najbardziej reprezentacyjne elementy elewacji oraz funkcje rozmieszczone zostały w taki sposób by wykorzystać najbardziej efektowne linie widokowe – z części głównej wystawy (strefa interakcji) w kierunku publicznego placu na sąsiedniej działce, natomiast z części konferencyjnej oraz gabinetu Głównego Komisarza na osi kanału wodnego otaczającego teren wystawowy.
Główne wejście do pawilonu zaprojektowane zostało od strony głównej alei. Do strefy biurowej dostać się można przez część wystawową lub wejściem technicznym, przeznaczonym dla obsługi pawilonu. Dla dostaw technicznych zaprojektowane zostało osobne wjazdy na tyłach pawilonu. Z tej strony dostarczane będą elementy wystawy oraz odbierane odpady. Publiczny plac (piazza) na sąsiedniej działce może być również wykorzystana dla organizacji dużych imprez np. koncertu czy letniego kina. W takim przypadku boczna ściana pawilonu stworzy atrakcyjną scenografię i oprawę placu.
TECHNOLOGIA
Pawilon zaprojektowany został w konstrukcji drewnianej. Słupy rozstawiono w osiach 300 x 600 cm, w układzie naprzemiennym (przesunięcie o 300 cm). Układ wzmacniają zastrzały nawiązujące do kształtu zboża.
Pojedyncze słupy zostały usunięte w częściach, gdzie niezbędne ze względu na funkcje jest zachowanie otwartej przestrzeni (przede wszystkim główna hala w strefie interakcji, strefa eksperymentu, gdzie planowane są tez duże konferencje i pokazy filmowe). Konstrukcja w tych miejscach jest wzmocniona i opiera się na podporach sąsiadujących. Wewnętrzne ściany są drewniane. Deskowanie powtarza kierunek zastrzałów podtrzymujących konstrukcję. Przyjęto zasadę ze górne pasy ścian są przeszklone. Ściany zewnętrze są przeszklone (stolarka drewniana) z wykorzystaniem i zastrzałów i deskowania do wysłonięcia części technicznych. Ażurowe elementy drewniane przesłaniają też wnętrze przed nadmiarem światła słonecznego. W miejscach wymagających wyciemnienia ze względu na projekcje multimedialne planowane są również dodatkowe przesłony w formie rolet.
Falisty sufit wykończony jest drewnem. Konstrukcja pawilonu opiera się na przygotowanej przez organizatorów płycie fundamentowej, nie wykraczając poza jej obrys. Podłoga pawilonu planowana jest z czarnej żywicy epoksydowej z zatopionymi drobinami (trociny słomiane).
[nggallery id=36]
